Przedmiotem oferty bardzo jasne i zadbane mieszkanie e, położone w doskonałej lokalizacji Wejherowa. Doskonała propozycja dla rodziny 2+1.
Nieruchomość znajduje się w budynku z 1998 roku, zarządzanym przez sprawną i zgraną wspólnotę.
Mieszkanie:
Powierzchnia "po podłodze": ok. 70m2
Dwupoziomowe, dwustronne, ciepłe, jasne i bardzo słoneczne
Ładne, otwarte widoki z okien w kierunku południowym i zachodnim.
Wysokość pomieszczeń ok. 2,70 m
Mieszkanie sukcesywnie odnawiane i utrzymane w świetnym stanie
W łazience podgrzewana podłoga
W cenie pełne umeblowanie i wyposażenie kuchni oraz większość mebli widocznych na zdjęciach
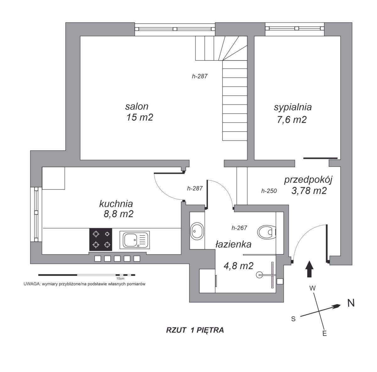
I poziom: korytarz, pokój dzienny z wejściem na II poziom, sypialnia, kuchnia i łązienka z WC
II poziom: otwarta przestrzeń z wydzielonym pomieszczeniem gospodarczym
Koszty eksploatacyjne:
w sezonie grzewczym 919,13zł
opłaty zawierają min. zaliczki na ciepłą i zimną wodę ok. 160zł, ogrzewanie ok. 200zł, wywóz śmieci 96zł i fundusz remontowy 136,45zł
Budynek i otoczenie
Rok budowy 1998
Dwie kondygnacje naziemne i poddasze
Parter przeznaczony na działalność handlowo usługową: poczta, delikatesy, szkoła językowa i krawcowa.
Zgrana wspólnota dbająca o budynek
Do włascicieli mieszkania należy nieoznakowane miejsce parkingowe przy budynku oraz udział w pomieszczeniu na wózki i rowery
Atuty lokalizacji
Filcharmonia Kaszubska ok. 200m
Dworzec PKP Wejherowo około 900 m
Centrum miasta z zabytkowym rynkiem około 1 km
Park Miejski około 850 m
Las i wejście do Trójmiejskiego Parku Krajobrazowego około 200 m
W bezpośrednim sąsiedztwie pełna infrastruktura usługowa i handlowa: Biedronka, Żabka, Rossmann, apteka, piekarnia, punkty gastronomiczne oraz liczne lokale usługowe na parterze budynku, m.in. . salon fryzjerski, kosmetyczny i punkt krawiecki.
W pobliżu znajdują się również szkoły i placówki medyczne.
Mieszkanie idealne dla osób szukających komfortu, przestrzeni i świetnej lokalizacji z szybkim dostępem do komunikacji i terenów zielonych.
599 000,00 PLN (10 974,72 PLN)
Wejherowo, Harcerska
Mieszkanie na sprzedaż,
Wejherowo, Harcerska
Dane szczegółowe
- Typ transakcji: sprzedaż
- Typ nieruchomości: Mieszkanie
- Lokalizacja: Wejherowo, Harcerska
- Powierzchnia:54,58 m2
- Liczba pokoi: 3
- Rok budowy: 1998
- Piętro: 1 z 1
- Numer oferty: 3M887249
- Cena: 599 000,00 PLN
- Cena za m2: 10 974,72 PLN
Kontakt z agentem: KASZUBSKIE CENTRUM NIERUCHOMOŚCI/3 MIASTO NIERUCHOMOŚCI
Małgorzata Janucewicz
Opis nieruchomości
Mapa
Kontakt z agentem
KASZUBSKIE CENTRUM NIERUCHOMOŚCI/3 MIASTO NIERUCHOMOŚCI