1 120 000,00 PLN (10 200,36 PLN)

2-poziomowe mieszkanie z ogrodem i kominkiem|hala

Mieszkanie na sprzedaż,
Gdynia, Spokojna

Kontakt z agentem: KASZUBSKIE CENTRUM NIERUCHOMOŚCI/3 MIASTO NIERUCHOMOŚCI
Opis nieruchomości

Dwupoziomowe mieszkanie z ogrodem i kominkiem | Gdynia ul. Spokojna

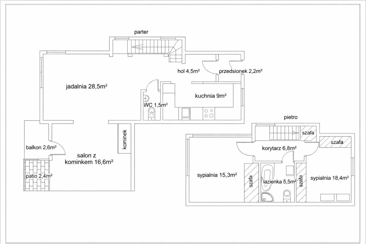
Na sprzedaż przestronne dwupoziomowe mieszkanie z prywatnym ogrodem, położone w spokojnej i zielonej części Gdyni przy ul. Spokojnej. To idealna propozycja dla osób poszukujących nieruchomości, która łączy komfort mieszkania z zaletami domu - dużą przestrzenią dzienną, kominkiem oraz własnym ogrodem.

Nieruchomość wyróżnia się bardzo jasnym i przestronnym salonem z kominkiem, który stanowi centralny punkt mieszkania. Salon połączony jest z jadalnią, tworząc dużą i funkcjonalną strefę dzienną. Z części dziennej znajduje się wyjście na balkon, z którego prowadzą schody do prywatnego ogrodu do wyłącznego korzystania.

Układ pomieszczeń:

Mieszkanie posiada funkcjonalny, dwupoziomowy układ:

Poziom pierwszy:
- przestronny salon z kominkiem
- jadalnia otwarta na salon
- oddzielna kuchnia
- toaleta
- balkon z zejściem do ogrodu

Poziom drugi:
- 2 komfortowe sypialnie
- łazienka

Dodatkowym atutem nieruchomości jest duży strych z oknem, którego wysokość w najwyższym punkcie wynosi ok. 2 m. Może pełnić funkcję dodatkowej przestrzeni do przechowywania, pracowni lub pokoju hobby.

Najważniejsze atuty nieruchomości


  •  dwupoziomowe mieszkanie w sercu Gdyni

  • duży salon z kominkiem

  • prywatny ogród do wyłącznego korzystania

  • balkon z zejściem do ogrodu

  • oddzielna kuchnia

  • duży strych z oknem

  • spokojna, zielona okolica

  • dużo naturalnego światła i przestrzeni



Do dyspozycji mieszkańców budynku dostępna jest również rowerownia.

Informacje dodatkowe:
- ogrzewanie gazowe
- opłaty do wspólnoty 1300 zł / miesiąc

Do mieszkania przynależą dodatkowo:
- miejsce w hali garażowej + piwnica - 60 000 zł
- miejsce postojowe zewnętrzne - 30 000 zł
Zakup miejsc postojowych jest obligatoryjny.

Lokalizacja:
Mieszkanie znajduje się w spokojnej części Gdyni przy ul. Spokojnej, w otoczeniu zieleni i kameralnej zabudowy. Lokalizacja zapewnia komfort życia, ciszę oraz dogodny dojazd do centrum miasta.

Zapraszam do kontaktu i umówienia się na prezentację mieszkania.

*Ogłoszenie nie stanowi oferty w rozumieniu KC.

Mapa
Kontakt z agentem

KASZUBSKIE CENTRUM NIERUCHOMOŚCI/3 MIASTO NIERUCHOMOŚCI

Katarzyna Zubowicz
Nieprawidłowy adres E-mail

Strona korzysta z plików cookie w celu realizacji usług zgodnie z Polityką prywatności. Możesz określić warunki przechowywania lub dostępu do cookie w Twojej przeglądarce.